燃气锅炉烟气余热回收方法及案例,教你节能,教你如何省钱
燃气锅炉烟气余热回收方法及案例,教你节能,教你如何省钱
目前,燃气锅炉在利用过程中,存在的主要问题是锅炉排烟温度较高,锅炉热效率低。针对此问题,可采取余热回收装置进行解决。
一、烟气余热回收

目前,传统燃气锅炉的排烟温度一般高于150℃,不仅有一部分显热被浪费,更有大量的水蒸气潜热被浪费。如果能将这部分热量利用起来,降低排烟温度,将大大提高锅炉效率。通常锅炉的排烟温度每升高15℃,锅炉的排烟热损失会增加1%。人们已经意识到余热回收的重要性,并进行了一系列的烟气余热回收技术研究,目前的余热回收技术有以下三种:1、采用冷凝式锅炉;2、常规锅炉加装余热回收装置;3、烟气再循环。其中,采用冷凝式锅炉和常规锅炉加装余热回收装置这两种方式使用较多,烟气再循环方式使用较少。
1、冷凝式锅炉
冷凝式锅炉是指能够从锅炉排放的烟气中吸收水蒸气所含的气化潜热的锅炉。
冷凝式锅炉在设计思想上与传统锅炉有很大的不同。冷凝式锅炉必须具有冷凝式热交换受热面,采用高性能的外壳保温和密封材料。用低温水将锅炉的排烟温度降到烟气冷凝温度以下,使烟气中呈过热状态的水蒸气凝结成水,放出气化潜热,把这一部分的热量回收仍利用与锅炉。按照燃料低位发热量为基准计算,整体效率可比传统的锅炉高出10%-17%。排烟温度可降至50℃-70℃。冷凝式锅炉不仅节省能源,而且在冷凝烟气中的水蒸气的同时,可以除去烟气中的有害物质。
由于整体型冷凝式锅炉烟道结构和阻力变化较大,需要增加较大的风机功率;冷凝液在炉内产生,需采取防腐措施;燃烧器在性能匹配上也与非冷凝式锅炉不同,因此通常整体性冷凝式锅炉的成本比常规锅炉高。
2、常规锅炉加装余热回收装置
目前针对燃气锅炉烟气余热回收的技术,主要集中在采用加装冷凝换热器、空气预热器和吸收式热泵等来降低排烟温度。
(1)加装冷凝式换热器
常规燃气锅炉加装冷凝式换热器,烟气降温过程中存在相变过程,开始发生相变的温度即为烟气的露点。高于露点时,锅炉供热效率的提高是靠烟气降温所释放的显热实现的。当烟气温度低于露点后,锅炉供热效率的提高是靠水蒸气冷凝释放潜热实现,此时烟气温度的降低对锅炉供热效率的提高,影响较为显著。
只有当热网回水温度低于20~30℃时,使用冷凝式换热器才会有好的效果。对于一般的供暖系统,尤其是区域供热系统,其热网回水温度远高于此值。因此,直接利用热网回水降低烟气温度是非常受限的。这一原因也严重制约了冷凝式锅炉在供热领域的推广使用。
(2)加装空气预热器

在供暖期,空气温度一般均远低于烟气的露点,因此,采用空气预热器成为回收烟气余热的途径之一。但空气预热器的缺点在于当烟气温度降至露点以下时,烟气侧发生了相变,而空气侧并没有发生相变。因此,空气只能带走烟气放热的小部分。
另外,也可采用烟气-水换热器和空气预热器组合的方式进行烟气余热回收,利用烟气-水换热器回收高温烟气段的显热,利用空气预热器回收中低温烟气段的潜热和显热。
(3)采用吸收式热泵

清华大学提出了将吸收式热泵用于燃气锅炉的烟气余热回收技术,并用直接接触式换热代替常规的间壁式换热。吸收式热泵在天然气等高温热源的驱动下制取低温冷水,锅炉的烟气作为吸收式热泵的低温热源同低温冷水进行直接接触式换热,由于冷水的温度较低,因此,烟气的温度可以降至25℃甚至更低。该技术突破了热网回水温度的限制,可应用于回水温度较高的供热系统中。
采用该系统回收余热,减少了天然气的耗量,相应地也减少了污染物的排放量。
3、烟气再循环
有的锅炉采取了烟气再循环系统,将部分尾部烟气送入炉膛重新参加燃烧,既利用了部分余热,又可降低NOx的生成量,具有节能和环保双重功效。
二、应用案例
(一)烟气余热回收利用系统
对于这种烟气-水换热器和空气预热器组合余热回收方式,对1台10.5MW燃气热水锅炉进行了测试。
在锅炉尾部烟道上设置一级节能器,然后在其后面再设置两级空气预热器。空气预热器的烟气侧将来自一级节能器的约100℃的高温烟气降至55℃左右排至大气中;空气预热器的空气侧将来自室外-8.9℃的冷空气加热至58℃左右,然后将这部分加热的空气一部分通过风道送至锅炉炉膛内供燃烧使用,一部分空气排到锅炉间内,然后通过锅炉房屋顶风机排至室外。在该系统运行过程中,根据锅炉所需空气量的多少来调节热风道上阀门开度控制风量。
但这种方式也受热网回水温度以及空气有限的回收余热能力所制约,当热网回水温度为50℃、室外气温-8.9℃时,这种方式只可将烟气温度从100℃降至55℃左右。

通过余热回收量的理论计算,即1台10.5MW(15T锅炉)的燃气热水锅炉,其烟气从100℃冷凝到55℃时,1h 所释放出的热量为4.46GJ。这部分回收热量用于预热锅炉燃烧所需的空气和锅炉间的采暖。由于上述计算为纯理论计算,没有考虑热损失,且烟气中的水蒸汽全部液化,故上述计算的余热回收量需打一个折扣,假设能够回收70%的热量,则1台10.5MW(15T锅炉)1h可回收3.12GJ的热量。
天然气的低位热值按照8300kcal/Nm3(即34.75MJ/Nm3)计算,则1台10.5MW(15T锅炉)1h可节约天然气89.78 Nm3。
以锅炉每天运行12h,每采暖季运行169天,平均热负荷系数为0.655,燃气价格为3.02元/Nm3计算,则一个采暖季1台10.5MW(15T锅炉)的燃气热水锅炉节约的费用为
169×12×0.655×89.78×3.02=36.02万元
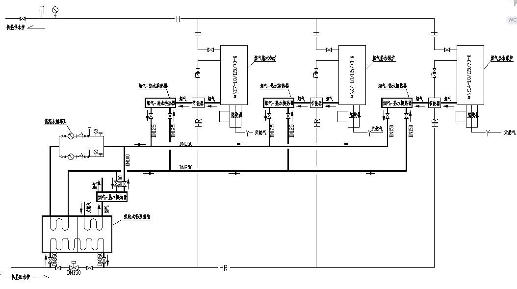
(二)吸收式热泵烟气余热利用系统

该项目对2台7MW和1台14MW的燃气热水锅炉进行改造,我们在每台锅炉的一级节能器之后,又分别安装了一台“烟气-热水换热器”。另外,该系统中还增加了吸收式热泵机组(燃气驱动)、低温水循环泵等设备。在系统运行过程中,燃气驱动吸收式热泵工作,由吸收式热泵制取低温水,然后该低温水在低温水循环泵的推动下循环,在烟气-热水换热器内与锅炉排出的烟气换热,吸收烟气内的热量,低温水温度升高后进入吸收式热泵机组内,通过吸收式热泵将热量传递给供热一次网的回水,使供热一次网的回水温度升高。通过增设该系统,可以在锅炉烟气排入大气之前将烟气中含有的显热和潜热进一步回收。将锅炉排烟温度降低至50℃以下,烟气中水蒸气的潜热也得到了回收。
另外,我们在低温水循环系统(吸收式热泵机组→燃气-热水换热机组→低温水循环泵→吸收式热泵机组)安装一块热量表,用来计量该系统从烟气中回收的热量,并对低温水循环泵的用电量进行计量。通过2017-2018年供暖季的运行,该系统从烟气中累计回收热量10325.22GJ,低温水循环泵耗电量90768度。
假设累计回收的这些热量由燃气锅炉提供,锅炉效率按90%,天然气的低位热值按照8300kcal/Nm3(即34.75MJ/Nm3)计算,则锅炉耗气量为:
10325.22×1000÷34.75÷90%=330142.9Nm3
即每个供暖季可节约燃气330142.9Nm3,若燃气价格按照3.02元/Nm3计算,则每个供暖季节约燃气费99.7万元。
由于每年低温水循环泵耗电90768度,电价按1元/度计算,增加的电费为9.07万元,则安装这套吸收式热泵烟气余热回收系统后,每个供暖季可节省的运行费用为:
99.7-9.07=90.63万元
可见,由这套吸收式热泵烟气余热回收系统所带来的节能效果非常明显,其收益也是非常可观的。
作者简介:本文作者从事清洁能源供热方面的工作,愿为我们的碧水蓝天贡献一份力量!
-
- 【法律知识】离婚诉讼的程序有哪些?
-
2025-10-08 02:28:22
-
- 南方电费震惊北方人!一个月快赶我一年电费,南方人家里都有矿吗
-
2025-10-08 02:26:07
-
- 嗨个不停!一起来花式玩转罗庄公社新春嘉年华~
-
2025-10-08 02:23:52
-
- 于莉:娱乐圈的璀璨星辰,情感的独特舞者
-
2025-10-08 02:21:37
-
- 夜寝长隆星级酒店,昼嗨长隆海洋王国两天!网友:太棒,不想离开
-
2025-10-08 02:19:22
-
- 许多明星都有超高的军衔,潘长江军衔竟这么高,你能想到吗?
-
2025-10-08 02:17:07
-
- 徐州必去十大旅游景点推荐,徐州周边游好去处,你去过几个?
-
2025-10-08 02:14:52
-
- 红极一时的管线机,为何遭到越来越多人嫌弃?只因5个问题太突出
-
2025-10-08 02:12:37
-
- 在越南,最值得一去的七个地方
-
2025-10-08 02:10:21
-
- 原来她是张凯丽女儿!怪不得能频繁上央视,是妈妈的骄傲更是心病
-
2025-10-08 02:08:06
-
- 教师节快到啦,这59张精美的教师节主题画值得收藏!千万不要错过!
-
2025-10-08 02:05:51
-
- 蒋方舟,7岁创作,9岁出版散文集、被清华大学降60分录取
-
2025-10-08 02:03:36
-
- 即使苹果公司一分钱不给,当年QQ为什么特别标注“iPhone在线”?
-
2025-10-08 02:01:21
-
- 当年巴伦支海事件:苏联战斗机凌空切割北约侦察机,结局如何?
-
2025-10-08 01:59:06
-
- 打油诗一首祖国风光美
-
2025-10-08 01:56:51
-
- 走进玛雅文明:金字塔、文字与独特习俗
-
2025-10-08 01:54:36
-
- 珠峰“大堵车”多人死亡,内幕简直令人头皮发麻,看完更畏惧!
-
2025-10-08 01:52:21
-
- 健身牛人的私人健身日记大公开,学学如何做自己的私教
-
2025-10-08 01:50:06
-
- 中东新力量破旧立新
-
2025-10-08 01:47:51
-
- 麦收即将开始,介绍10个品牌轮式联合收割机售价
-
2025-10-08 01:45:36



褚时健当年得罪了谁(褚时健是被谁害的话)
邱行湘老婆张玉珍生平 邱行湘将军之子邱晓辉
钱雁秋最新力作《神探狄仁杰6》卷土重来,张子健回归变反派
十位欧美健身男模,颜值和身材兼备,肌肉帅气十足
法官职务等级及工资揭秘,宝藏级信息
卓伟爆料圈内最干净的三位女星,颜值在线还零绯闻,没人质疑
非你莫属晕倒哥后续(非你莫属晕倒小伙)
中国最发达省份排名:江苏、福建、浙江居前
33年前,英雄徐良凭《血染的风采》家喻户晓,他现在怎样了
演员甘露个人资料(演员甘露个人资料及照片老公)